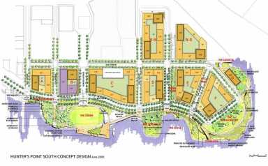
Things to do in Queens
Today, 10 am
Jan. 17, 9:30 am
Jan. 19, 8:30 am
Latest News
Hochul’s self-driving for-hire AV pilot program draws anxiety from NYC groups, pols
MLK Day: NYC Subways, buses and commuter rails will run modified service. Here’s what you need to know
Kew Gardens man sentenced to prison for possessing arsenal of illegal firearms in his apartment: DA
Maspeth Federal Savings hosts MVP Rollers for financial literacy seminar
Queens basketball coaches named Jr. Knicks Coach of the Year nominees
Entertainment
New York Irish Center announces major ‘winter-spring’ highlights, including St. Patrick’s Day celebrations
New year, new shows! What’s coming to Queens Theatre this winter and spring
MoMA PS1 announces free admission for all through 2028
New Ridgewood art gallery opens, calls upon local artists for exhibitions
Flushing Town Hall to host diverse Lunar New Year lineup












