Space under the Queensboro Bridge ramp on Jackson Ave. (Google Maps)
Sept. 13, 2018 By Nathaly Pesantez
A local civic group will be holding a rally in Court Square next week to demand more public space as a result of the city’s plan to transfer air rights to a Long Island City developer.
The rally, organized by the Court Square Civic Association, centers on the city-owned lots under the Queensboro Bridge ramps on Jackson Avenue.
As the city can’t build over these lots, it is proposing to transfer its development rights to the Lions Group, which owns two adjacent private lots at 27-01 and 26-32 Jackson Avenues.
The transfer will result in a two-tower development three times larger than permitted under current zoning, with less than half of the city’s air rights being used to create affordable housing. The rest would be factored into the condo and commercial spaces within the two buildings.
While the trade off alone has received push-back, the Court Square Civic Association has been fighting for the deal to include freeing up these city-owned lots, currently in use by the Department of Transportation, to make way for open space.
Freeing up the lots in this air rights transfer, according to the group, paves the way for a larger vision its held for the neighborhood—for all the property under the ramps to be turned into open space in the steadily crowding area.
“We’ve always had a bigger ambition for the entire project,” said Pedro Gomez, president of the CSCA.
The group has laid out the possibilities on its website, detailing prior visions for landscaped gathering spaces under the bridge ramps by both private and public stakeholders, demonstrating that the concept is anything but new.
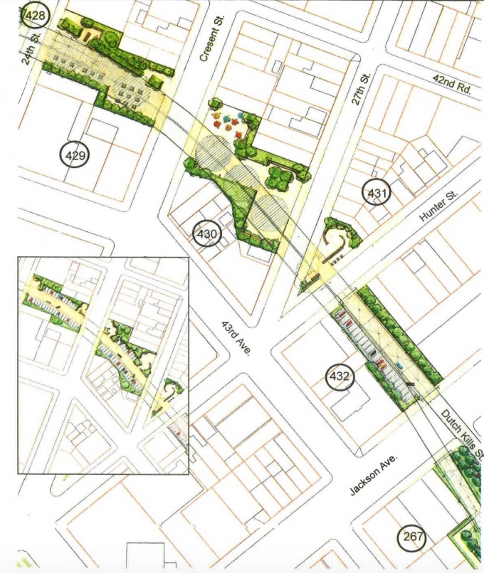
A 1999 City Planning Commission report, for example, proposes developing open space under the ramps as part of its planning goals for the neighborhood. The area under the ramps that is exposed to the sun would include trees, planting, benches, and game tables.

A past city concept for open space under Queensboro Bridge ramps. (DCP)
The space directly under the ramps, meanwhile, would be temporarily fenced off when needed by the DOT. When not in use, it would become part of the public space, and enhanced with paving and ceiling treatments.
While it is unclear why past concepts have not developed, Gomez said displaying them has helped people see the potential in empty lots.
“I’ve had a ton of people telling me how excited they are about these visions,” he said, noting that the group’s page has had a massive spike in traffic. “I’m sensing more excitement for what it could be.”
Gomez also points to open, active spaces under highway and bridge ramps all across the city, like under the FDR Drive in lower Manhattan, to show that it can be done.
While the rally comes as the city’s project approaches the end of its public review process, the CSCA stresses that the lots should become open space regardless of a deal on the table, let alone one that adds density to the neighborhood.
“This is the only time where I think we’ll have this kind of leverage to demand something,” Gomez said. “My hope is that we get the DOT to finally release the lots.”
The CSCA says its goals for the neighborhood now rest in the hands of Council Member Jimmy Van Bramer, as the City Council is set to vote on the proposed project soon.
Van Bramer has not taken a stance on the proposal yet, but said he has many concerns about the project that would need to be addressed. His statement follows a walk-through he did with DOT Commissioner Polly Trottenberg this summer on opening space under the Queensboro Bridge to benefit the community.
The DOT, in a statement, said the areas under the Queensboro Bridge ramps have a variety of uses, and that it looks forward to continued talks with the community on other ways the lots can be used.
The agency, in addition, said it continues to weigh city concerns with opening up the lots, including access for bridge inspections and other safety and security concerns.
The Rally for Public Space in Court Square will take place at 12 p.m. on Sept. 22 at the corner of Dutch Kills St. and Jackson Ave.
Update 9/17, 10:20 a.m. – Article updated with DOT responses.