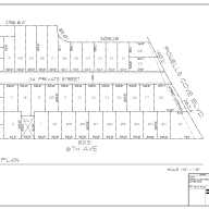
The new owner of the former Cresthaven Country Club site in Whitestone is hoping to break ground on a massive development project of 45-single family detached homes by the end of the summer.
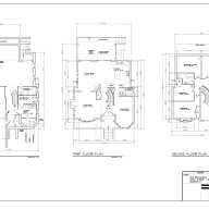
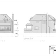
Most of the homes on the six-acre site will have approximately 2,500 square feet of living space with four bedrooms and four full bathrooms, according to Tim O’Sullivan of Fulcrum Real Estate Advisors, which purchased the site in a foreclosure auction last month for $13.6 million.
Great Neck-based architect Frank Petruso is designing the project. The current plans could change, but the 45 homes in O’Sullivan’s plans would sit on 4,000- to 6,000-square-foot lots, so each could have space for driveways and private yards. And based on the renderings, homes would have garages and basements. They could sell for $1.5 to $2 million each.
Although original plans were for 50 homes, they were shrunk to 45 so each home will have more space.
However, as smart investors do all the time, O’Sullivan is testing the real estate market to see the possible value for the site and has listed it with brokerage Cushman & Wakefield. He is taking offers for the site, but said a potential buyer would have to offer a price that “hit it out of the park” to get him to sell the site.
“Very few people get a chance to make their mark with 45 properties in an area,” said O’Sullivan, who grew up in Whitestone. “Our intention is we are in the ground in the summer. That’s the reason we bought the property.”
He added, “After we got it on auction, I had people coming to me offering me ‘X’ dollars. What we decided to do is put it out there and test the market. But we are continuing with our development plans.”
Stephen Preuss of Cushman & Wakefield, who is handling marketing for the site, said he doubts any potential buyer of the site would try to divert from the plan.
“For them to be in the ground in the next few months, they would have to follow those plans,” Preuss said. “I don’t think any developer would change those plans. It’s been well received by the community.”

While residents and politicos in the area have approved O’Sullivan’s plan, they are starting to warm up to another developer’s plan for the nearby 18-acre Waterpointe site.
After negotiations with Councilman Paul Vallone, Edgestone Group, which owns the much larger site, turned away from a plan with 107 townhouses to one with 52 community-supported, single-family residences with a waterfront park, promenade, marina and other amenities.
RECOMMENDED STORIES






































