Parcel C of the Hunters Point South Development. Two towers will be built on the pictured lot, along with an elementary school. The site currently holds an LIRR building, which will remain in place. (Google Maps)
Feb. 27, 2018 By Nathaly Pesantez
Building permits have been filed for a 46-story residential building long slated to be built on Center Boulevard as part of the city’s Hunters Point South project.
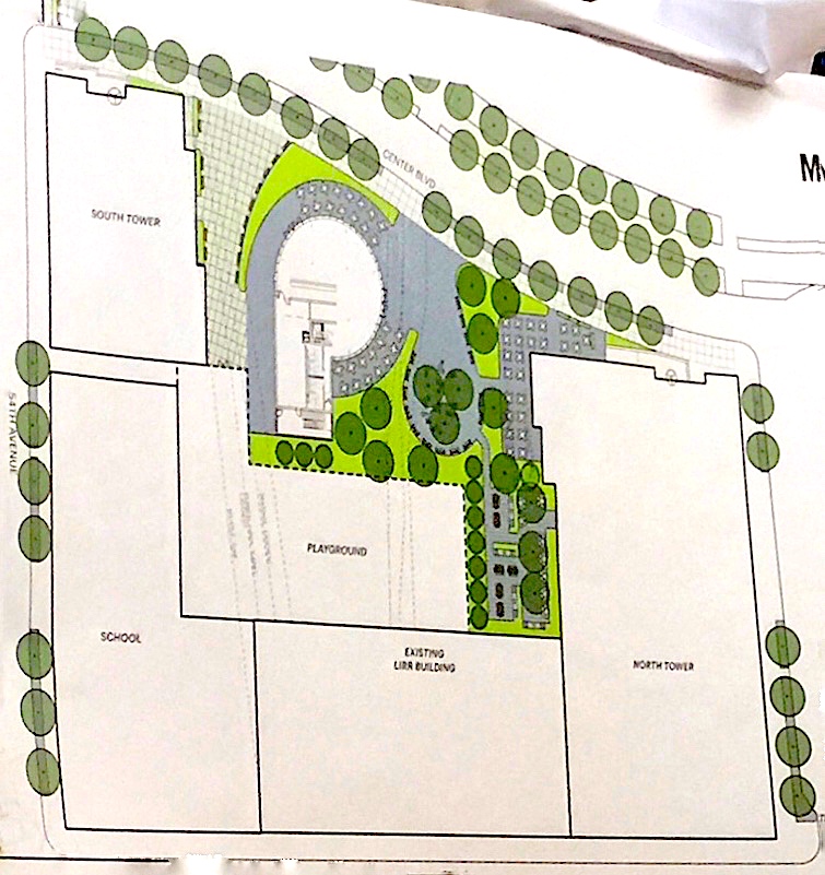
The new building will have an address of 52-41 Center Blvd., and is situated in parcel C, the block bordered by Borden and 54th Avenues, and Center Boulevard and 2nd Street. Two towers have been planned for the parcel, with developers filing permits to build one of the two towers—the north tower— back in October.
The south tower, according to building plans filed today, will rise to a height of 475 feet, and will hold 394 units. The building will span to roughly 383,000 square feet, which includes just under 8,000 square feet for a community facility and 854 square feet for a commercial facility.
The bulk of the units will be from the fourth floor up, with no more than 10 units on a floor.
The tower, one of several planned as part of the city’s affordable housing project, will be built by TF Cornerstone and designed by SLCE Architects.
Both TF Cornerstone and the HPD announced in an October CB2 Land Use meeting that the two towers had to undergo a height increase due to current infrastructure below ground interfering with original design plans. Both parties confirmed that the number of units planned since 2013 have remained, with 236 of the apartments in the south tower being classified as affordable.
Layout of the redesigned parcel C
TF Cornerstone and the HPD also announced during the meeting that the community facility planned for the building will be taken up by Sunnyside Community Services.
The parcel is also expected to see a five-story elementary school that can seat 572 students. The school will span 34,000 square feet, and incorporate a ground level playground.
A food pavilion will also be built on the parcel.
HPD did not immediately respond to questions on the anticipated groundbreaking and completion of the building.
The two towers on Parcel C are part of seven residential towers planned for the Hunters Point South development. The overall site, spanning from 54th Avenue to Newtown Creek, is currently in Phase II, which will see the construction of 3,000 units in the four remaining parcels, along with a 600-seat school.
Jaclyn Sachs of HPD and John McMillan of TF Cornerstone present a rendering showing the redesigned parcel C in October.

































